
水戸市は、2020年4月に「中核市」への移行を目指しています。水戸市は中核市移行に伴い、保健所や身体障害者手帳交付など1920件に及ぶ事務項目が県から移譲されます。動物愛護に関する業務も委譲され、水戸市は、犬や猫の保護や収容などを行う「水戸市動物愛護センター」(仮称)を水戸市河和田町に整備する計画です。昨年4月に移転した旧療育センターの既存施設を活用し、2019年度から改修や増築工事に着手します。
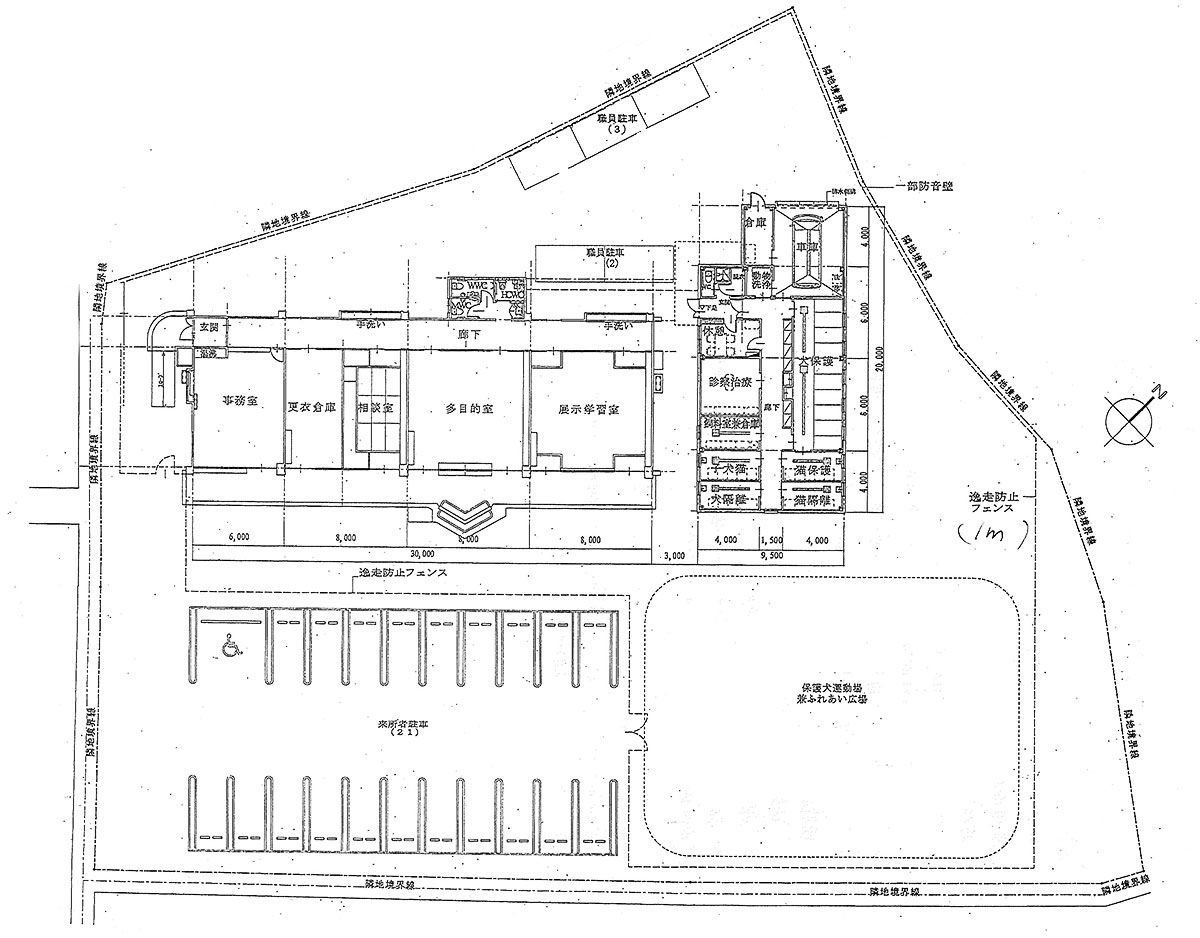
旧療育センターの既存施設は平屋建て、延床面積は約300平方メートル。この施設を一部改修し、診察室や事務室などとして利用します。また、北側に延床面積100〜150平方メートルの収容施設も増築します。2018年度中に実施設計を行います。事業費は設計を含め1億1000万円を見込んでいます。
水戸市動物愛護センターの主な役割は、動物愛護の普及啓発、動物の保護収容や飼養管理、保護収容動物の生きる機会確保、適正飼養の啓発や指導、災害対応、動物事故対策の推進ーなどです。具体的には保護動物の返還や譲渡のほか、子ども向け動物ふれあい教室の開催、幼稚園や小学校などと連携した愛護教育を推進していきます。
収容は1日当たり犬15匹、猫20匹ほどを想定しています。収容期間は1頭当たりで犬が90日間、猫が60日間とします。敷地内には運動用広場なども併設し、保護動物の健康管理や教室の場としても活用します。施設内で殺処分業務は行わず、県の動物指導センターに委託します。
動物愛護条例も制定へ
また、水戸市は、動物に対する飼育管理や愛護に関する条例を定める方針です。水戸市動物愛護センター整備に合わせ、飼い主の管理責任などを中心に規定するほか、動物愛護教育の啓発を目指していきます。市保健所準備課によると、市内における2017年度の犬猫の捕獲頭数は、犬が56頭、猫が141頭。このうち、1〜2割が飼い主への返還や譲渡が実現せず、殺処分されていています。
市保健所準備課では、殺処分ゼロへ向け、愛護団体や獣医師会などと連携し、命の大切さに関する教育や飼い主の責任などを規定した条例をつくり、可能な限り譲渡や返還につなげる体制を構築していくとしています。
動物愛護条例も制定へ
また、水戸市は、動物に対する飼育管理や愛護に関する条例を定める方針です。水戸市動物愛護センター整備に合わせ、飼い主の管理責任などを中心に規定するほか、動物愛護教育の啓発を目指していきます。市保健所準備課によると、市内における2017年度の犬猫の捕獲頭数は、犬が56頭、猫が141頭。このうち、1〜2割が飼い主への返還や譲渡が実現せず、殺処分されていています。
市保健所準備課では、殺処分ゼロへ向け、愛護団体や獣医師会などと連携し、命の大切さに関する教育や飼い主の責任などを規定した条例をつくり、可能な限り譲渡や返還につなげる体制を構築していくとしています。










